Contoh Berita Acara Serah Terima Rumah

Contoh berita a car a serah terima rumah dijual, contoh berita a car a serah terima rumah123, contoh berita a car a serah terima rumah peranginan, contoh berita a car a serah terima barang, contoh berita a car a serah terima inventaris, contoh berita a car a serah terima apoteker, contoh berita a car a serah terima jabatan kepala sekolah, contoh berita a car a serah terima pekerjaan jasa konsultansi, contoh berita a car a serah terima jabatan organisasi, contoh berita a car a serah terima barang milik negara, contoh berita a car a serah terima, contoh berita a car a serah terima pekerjaan jasa konsultansi, contoh berita a car a pemeriksaan, contoh berita a car a penyerahan barang, contoh berita dalam bahasa inggris, contoh berita singkat, contoh berita kebakaran, contoh berita banjir, contoh berita kecelakaan, contoh berita feature,



Berita acara serah terima barang
Berita Acara Serah Terima Barang via www.slideshare.net


Berita acara serah terima dokumen
Berita Acara Serah Terima Dokumen via www.slideshare.net


Berita acara pemeriksaan kas
Berita Acara Pemeriksaan Kas via www.slideshare.net


Susunan proposl-pkpkm-13-fix
Susunan Proposl-pkpkm-13-fix via www.slideshare.net


@THE COMPLEX'S CHUNGNAM 347 INSIDE: BERITA ACARA SERAH
@the Complex's Chungnam 347 Inside: Berita Acara Serah via chungnam347.blogspot.com


Contoh berita acara pho proses ba pemeriksaan pek
Contoh Berita Acara Pho Proses Ba Pemeriksaan Pek via www.slideshare.net


Cetak Tagihan Ke Leasing  Program Dealer Motor l Program
Cetak Tagihan Ke Leasing Program Dealer Motor L Program via mediadatasoft.net


RUMAH SAKIT PGI CIKINI
Rumah Sakit Pgi Cikini via rspgicikini.blogspot.com


Mc & protokoler training module by Tarsih Ekaputra
Mc & Protokoler Training Module By Tarsih Ekaputra via www.slideshare.net


Pergub 49 th 2012 ttg sistem & prosedur pengelolaan
Pergub 49 Th 2012 Ttg Sistem & Prosedur Pengelolaan via www.slideshare.net


Lampiran 11 contoh surat penurunan kuasa pengetua
Lampiran 11 Contoh Surat Penurunan Kuasa Pengetua via www.slideshare.net


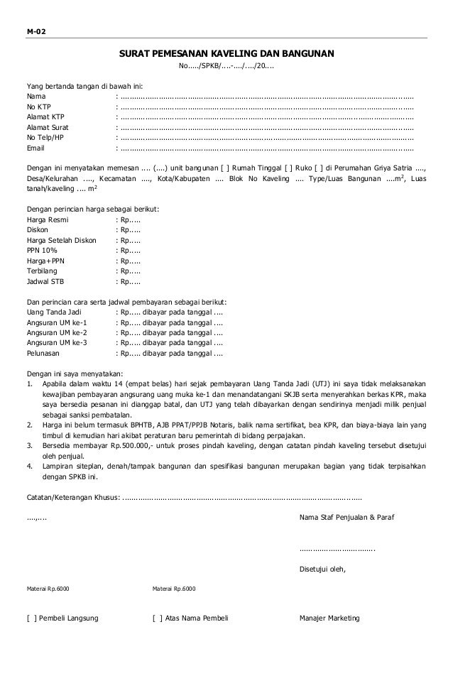
Form mkt02 (surat pemesanan kaveling dan bangunan)
Form Mkt02 (surat Pemesanan Kaveling Dan Bangunan) via www.slideshare.net


Analisis: Pencerobohan Lahad Datu Oleh 'Tentera DiRaja
Analisis: Pencerobohan Lahad Datu Oleh 'tentera Diraja via andakjauhar.wordpress.com


Contoh Homograf Yang Homofon - Contoh O
Contoh Homograf Yang Homofon - Contoh O via contoho.blogspot.com


Pencatatan Barang Inventaris Sumber Dana BOS Pusat  deuniv
Pencatatan Barang Inventaris Sumber Dana Bos Pusat Deuniv via deuniv.blogspot.com


Random Image


Related Posts To Contoh Berita Acara Serah Terima Rumah


Contoh Berita Acara Serah Terima Rumah Rating: 4.5 Posted by: Hendar

Search Here

Popular Posts

Total Pageviews

Recent Posts